• Graphic Design
  • Nomads
  • La Casa Birria
  • Sushi Counter
  • Ninety Nine Skin
  • Casita
  • Wise Spice
  • Vigilante
  • Eclypse
  • The Staple Set
  • Kurlz
  • DK Design
  • Mabu
  • Colortherapy
  • Illustration
  • TOTO
  • Dúo del Sol
  • Le Coeur sur la Main
  • Un Vase d'Espoir
  • Interior Design
  • Youth Hub
  • Life Post 2020
  • Isabella couture
  • Furniture Design
  • Museum
  • Co-Living
  • Chair Recreation
  • Construction Documents
  • Invisible Cities
  • Carpentry
  • Digital Media
  • Photography
  • Ceramics
  • Logo Design
  • Business Card Design
About Me
Contact
Dana Kabbani
  • Graphic Design
  • Nomads
  • La Casa Birria
  • Sushi Counter
  • Ninety Nine Skin
  • Casita
  • Wise Spice
  • Vigilante
  • Eclypse
  • The Staple Set
  • Kurlz
  • DK Design
  • Mabu
  • Colortherapy
  • Illustration
  • TOTO
  • Dúo del Sol
  • Le Coeur sur la Main
  • Un Vase d'Espoir
  • Interior Design
  • Youth Hub
  • Life Post 2020
  • Isabella couture
  • Furniture Design
  • Museum
  • Co-Living
  • Chair Recreation
  • Construction Documents
  • Invisible Cities
  • Carpentry
  • Digital Media
  • Photography
  • Ceramics
  • Logo Design
  • Business Card Design
About Me
Contact

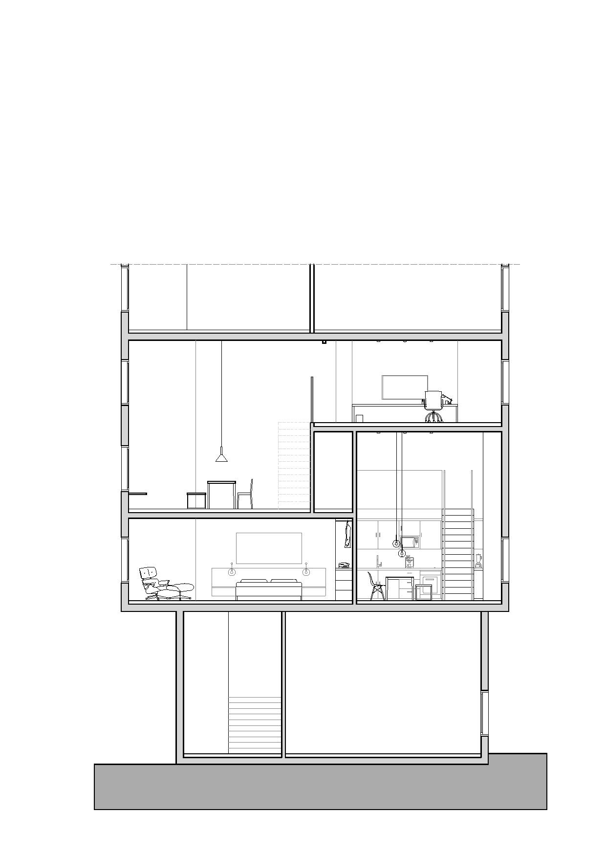
Co-Living

Co-Living Building in Bachoura, Lebanon. Based on the concept of intersection, i created a typology of interlocked duplex apartments connected with a corridor.

↑Back to Top

Can we share cookies? 🍪 Yes, sharing is caring No, I don't share my food